Tu sú podrobnejšie popísané najčastejšie otázky ku cenám interiérových návrhov – ich kalkuláciám, čo je a nie je obsahom služieb, ktoré sú v kalkulácii zahrnuté. Tento online dokument je priebežne aktualizovaný pre lepšie vysvetľovanie našich služieb na základe otázok klientov. Interne toto nazývame „Obchodné podmienky ľudskou rečou“. Odporúčame si toto preto ku kalkulácii vytlačiť, aby ste mali k dispozícii verziu z času, keď sme spolu riešili vašu kalkuláciu. Predídeme tak prípadným nedorozumeniam v budúcnosti, ak tu medzičasom niečo pribudne alebo sa zmení.
01. Čo sú to Balíky služieb? ▼
02. Môžem balíky kombinovať pre rôzne priestory? ▼
03. Môžem si objednať návrh priestorov postupne? ▼
04. Čo obsahuje Štúdia interiéru? ▼
05. Čo sú to Základné podklady k realizácii? ▼
06. Čo sú to Realistické vizualizácie? ▼
07. Môžem si dodadočne doobjenať Realistické vizualizácie? ▼
08. Čo je to Podrobný realizačný projekt? ▼
09. Kedy potrebujem zameranie? ▼
10. Čo nie je zahrnuté v cene balíkov služieb? ▼
11. Platobné podmienky a fakturácia ▼
01. Čo sú to Balíky služieb?
Balíky služieb sú u nás dlhodobo osvedčené kombinácie našich služieb poskladané z jednotlivých fáz návrhu a projektu interiéru. Celý proces návrhu a projektovania interiérov je možné rozdeliť na 4 fázy, pričom nie všetky fázy sú nutné:
– Štúdia interiéru ▼
– Základné podklady k realizácii ▼
– Realistické vizualizácie ▼
– Podrobný realizačný projekt ▼
02. Môžem balíky kombinovať pre rôzne priestory?
Jednotlivé riešené priestory si môžete nechať spracovať v rôznych balíkoch služieb.
Napríklad je pre vás najdôležitejšia obývačka s kuchyňou a chcete tento priestor preto vidieť aj vo fotorealistickej kvalite. Tak si zvolíte balík PREMIUM.
Ale napríklad riešenie šatníka pri spálni potrebujete vyriešiť skôr prakticky a fotorealistické obrázky nie sú možno pre vás v tomto prípade až tak dôležité. Preto pre tento priestor postačí napríklad balík PLUS.
Týmto spôsobom si môžete rozhodnúť a nakombinovať jednotlivé balíky pre každý riešený priestor zvlášť.
Ponuky na začiatku štandardne pripravujeme tak, aby jedna ponuka obsahovala iba jeden typ balíka. Na požiadanie vám pripravíme aj kombinovanú cenovú kalkuláciu.
03. Môžem si objednať návrh priestorov postupne?
Ak zvažujete návrh viacerých priestorov v dome alebo byte, môžete si ich objednávať aj postupne. Napríklad vás najviac zaujíma riešenie obývačky s kuchyňou a ešte nie ste rozhodnutý, či budete potrebovať aj návrh napríklad hosťovskej izby. Pre neskoršie doobjednanie priestorov platí cena z kalkulácie (bez príplatku). Samozrejme, ak si služby doobjednáte vo výraznejšom časovom odstupe, ako je oficiálna platnosť kalkulácie, môže sa stať, že medzičasom upravíme cenník služieb. V tom prípade vám pripravíme aktualizovanú kalkuláciu.
04. Čo obsahuje Štúdia interiéru?
Štúdia interiéru je hlavnou časťou práce interiérového architekta. Ide o vymyslenie a spracovanie návrhu riešeného priestoru do 3D modelu.
Súčasťou je:
– Spracovanie základného 3D modelu v programe Sketchup. Výstupom sú nerendrované obrázky z 3D priestoru
– Schematický pôdorys vygenerovaný z 3D modelu
– Farebné a materiálové prevedenie nábytku, podláh, dverí, stien a podhľadov, výber svietidiel a spotrebičov.
– Konzultácie mailom a telefonicky podľa potreby + konzultácie v kancelárii ateliéru podľa potreby.
Ukážka výstupu nerendrovaných obrázkov (návrh detskej izby):



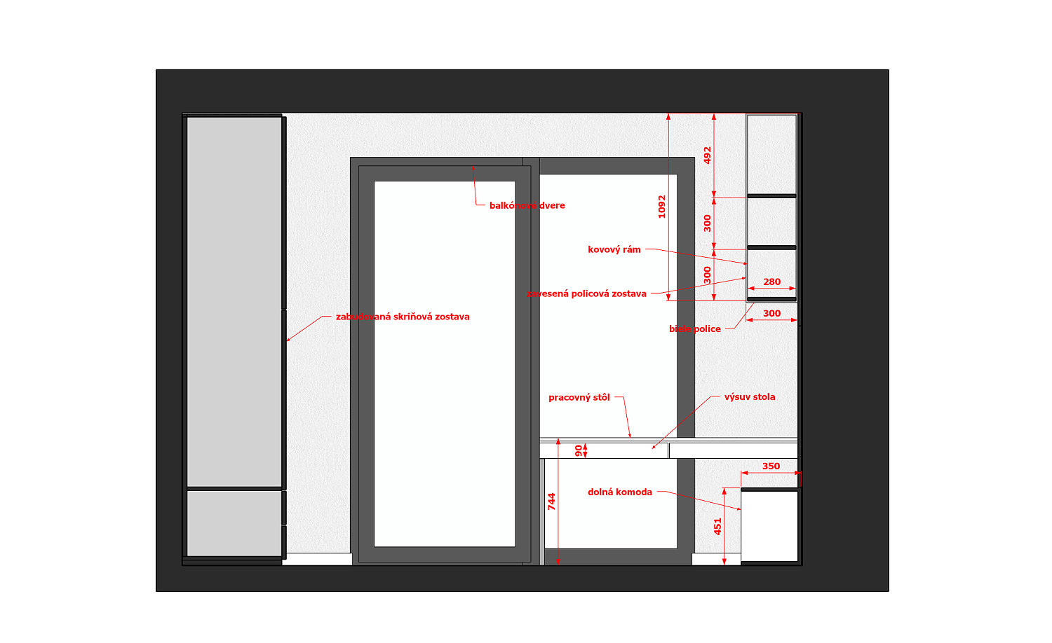
05. Čo sú to Základné podklady k realizácii?
Základné podklady k realizácii interiéru obsahujú:
– Pohľady a pôdorysy vytvorené z 3D modelu s kótami a popisom
– Polohy svietidiel a polohy zásuviek ku navrhovaným spotrebičom
– Rozmery prípadných stavebných úprav a jednotlivých interiérových prvkov a nábytku
– Zoznam navrhnutých prvkov s kontaktami (možnosti nákupu a objednania)
– V prípade záujmu aj cenové ponuky od nami odporúčaných dodávateľov a realizátorov
Ukážka podkladov (návrh detskej izby):

Rezopohľad 01

Rezopohľad 02

Rezopohľad 03

Rezopohľad 04

Pôdorys
06. Čo sú to Realistické vizualizácie?
Realistické vizualizácie sú podrobnejším spracovaním 3D modelu z programu Sketchup v externom renderovacom programe. Samotné vizualizácie nemajú priamy vplyv na samotné riešenie interiéru. Ide hlavne o vernejšie zobrazenie návrhu v 3D prevedení v skoro fotorealistickej kvalite. Snahou je čo najviac sa priblížiť realite. Preto je táto forma odprezentovania nárhu u našich klientov obľúbená. Lebo si vedia najlepšie predstaviť finálny výsledok návrhu.
Ak máte dobrú predstavivosť, prioritne vám ide o kvalitný návrh interiéru a nepotrebujete návrh vidieť vopred vo fotorealistickej kvalite, nie sú vyslovene potrebné.
Oproti základnému 3D modelu obsahujú naviac:
– vernejšie osvetlenie interiéru
– vernejšie materiály s priehľadnosťou a odleskami
– detailnejšie 3D modely
– rôzne doplnky interiéru (vankúše, kvety, knihy a pod), ktoré interiér priblížia „zabývanému stavu“
Ukážka realistických vizualizácií (návrh detskej izby):



Interaktívne porovanie – ťahajte za červenú čiaru


07. Môžem si dodadočne doobjenať Realistické vizualizácie?
Dodatočné doobjednanie Realistických vizualizácií ku balíkom BASIC a PLUS je samozrejme možné.
3D modely v balíkoch BASIC a PLUS pripravujeme v týchto balíkoch inak, ako keď si rovno na začiatku objednáte balík PREMIUM alebo EXTRA. Pripravujeme modely tak, aby tie nižšie balíky boli lacnejšie, takže sú 3D modely aj kvôli tomu modelované jednoduchšie. Preto pri doobjednaní vizualizácií je cena vyššia, ako je samotný cenový rozdiel medzi balíkmi. Pretože časť práce na modeli sa musí spraviť nanovo a model sa musí prepracovať a lepšie pripraviť na rendrovanie vizualizácií.
Naopak pri objednaní balíkov PREMIUM a EXTRA si už od začiatku model pripravujeme s tým, že sa bude používať aj na vizualizácie.
Odporúčame vám preto, rozhodnite sa rovno na začiatku pred začatím práce na návrhu interiéru či vizualizácie potrebujete alebo nie. Takto je to pre vás finančne výhodnejšie. Rovnako pre nás je to takto menej pracné.
Ak si rozhodnutie, či vizualizácie potrebujete alebo nie chcete nechať na neskôr po návrhu, tak ceny za dodatočné doobjednanie sú priamo v cenovej ponuke zvýraznené na oranžovo v stĺpci „Realistické vizualizácie dodatočne.“ Zobrazenie týchto cien je iba v prípade, ak je zvolený niektorý z balíkov BASIC alebo PLUS.
08. Čo je to Podrobný realizačný projekt?
Podrobný realizačný projekt obsahuje podrobné rozkreslenie výkresovej dokumentácie riešených priestorov:
– pôdorysy
– rezopohľady na riešené steny
– výkresy podhľadov a osvetlenia
– špecifické detaily
– rozkeslené detaily a výkresy všetkých atypických nábytkov
– v prípade rekonštrukcií obsahuje výkresy búracích prác a nových stavebných prác
– a pod.
Ide vlastne o najpodrobnejšie spracovanie projektu interiéru, ktoré je zaužívané v architektonických a projektových ateliéroch pri všetkých typoch interiérov – nie len pri obytných interiéroch.
Z našej praxe sme vypozorovali, že pre väčšinu riešených obytných interiérov (rodinných domov a bytov) takýto rozsah nie je vyslovene potrebný a postačuje rozsah „Základné podklady k realizácii“. Pretože každý výrobca nábytku si vo výsledku výrobnú dokumentáciu nastavuje pre svoju výrobu po svojom. A drobné stavebné úpravy v interiéri sa napríklad dajú zachytiť aj v „Základných podkladoch k realizácii“. Preto podrobný realizačný projekt zvykneme riešiť výnimočne.
09. Kedy potrebujem zameranie?
Zameranie riešime iba v prípade, ak ide o existujúci interiér. Ak sa rozhodnete zameranie dodať priamo vy, zodpovedáte za presnosť zamerania. Prípadné prepracovanie návrhu kvôli zlému zameraniu bude účtované naviac. K zameraniu sa pripočítavajú cestovné náklady.
Zameranie nie je potrebné, ak sa stavba, kde bude riešený interiér, ide iba stavať. Vtedy potrebujeme podklady z projektu stavby. Ideálne sú digitálne podklady vo formáte DWG. Prípadne odfotené papierové výkresy projektu stavby alebo PDF.
10. Čo nie je zahrnuté v cene balíkov služieb?
Balíky služieb počítajú s určitým primeraným časom venovaným práci na danom interiéri na základe dlhodobých skúseností ateliéru. Nasledovné veci ale nie je možné vopred odhadnúť, lebo sú pri každom klientovi často značne rozdielne. Preto nie sú súčasťou ceny balíkov:
Zásadná zmena zadania.
Pred začatím spracovávania štúdie si prejdeme spolu a zadefinujeme si vaše požiadavky a predstavy – tzv: „Zadanie štúdie“. Je ale dôležité, aby ste si toto zadanie dobre následne premysleli. Pretože vami vyvolaná zmena zadania počas rozbehnutého navrhovania znamená navýšenie pracnosti. Nutné práce naviac oproti pôvodnému zadaniu vám pred začatím prepracovávania prekalkulujeme a zašleme na odsúhlasenie.
Špeciálne odborné konzultácie profesistov
Cena od 25 EUR/hodina.
Ide o špecifické konzultácie, ktoré je potrebné urobiť v prípade požiadaviek, ktoré nevie priamo vyriešiť interiérový architekt a musí k tomu prizvať odborníka na danú tému. Pri väčšine našich riešených interiérov to nie je potrebné.
Zabezpečenie realizácie a autorský dozor
Cena je od 25 EUR/hodina (podľa dohody a náročnosti).
Cena realizácie sa určí po uzavretí návrhu.
Cestovné náklady mimo miest, v ktorých máme kancelárie
Cestovné náklady sú 0,7 EUR/km (počíta sa cesta tam a aj späť).
Aktuálne máme kancelárie s interiérovými architektami v Trenčíne a Bratislave. Cestovné náklady sa pripočítavajú napríklad k cene zamerania, k zabezpečeniu realizácie, autorskému dozoru, návštev vzorkových predajní a pod.
– Dopracovanie projektov rôznych profesií (napr.: statika, plynoinštalácia, vykurovanie, voda, kanalizácia, elektroinštalácia, inteligentná elektroinštalácia a pod..)
11. Platobné podmienky a fakturácia
Všetky platby za služby sa hradia výhradne prevodom na účet na základe digitálne vystavenej faktúry vo formáte PDF zasielanej mailom. Na vyžiadanie je možné faktúru vytlačiť a odovzdať aj v tlačenej podobne. Nie je možnosť hotovostnej platby, lebo nemáme registračnú pokladnicu.
Platby za návrh v balíkoch BASIC, PLUS a PREMIUM sú rozdelené na 2 časti nasledovne:
1. Platba: Po objednaní návrhu vám vystavíme faktúru na začatie prác vo výške 60% z celkovej ceny za služby. Na návrhu začíname robiť po pripísaní peňazí na účet.
2. Platba: Zvyšná suma 40% za návrh sa hradí po ukončení spracovania. Splatnosť koncovej faktúry je 14 dní.
Platby za návrh v balíku EXTRA sú rozdelené na 3 časti nasledovne:
1. Platba: Po objednaní návrhu vám vystavíme faktúru na začatie prác vo výške 60% z celkovej ceny za služby. Na návrhu začíname robiť po pripísaní peňazí na účet.
2. Platba: Pred začatím prác na podrobnom realizačnom projekte vám vystavíme faktúru vo výške 20% z celkovej ceny za služby. Na projekte začíname robiť po pripísaní peňazí na účet.
3. Platba: Zvyšná suma 20% sa hradí po ukončení celého spracovania. Splatnosť koncovej faktúry je 14 dní.
Tento dokument spodrobňuje informácie na kalkuláciách za návrhy interiérov firiem:
Inardex s.r.o., Šoltésovej 1995, 911 01 Trenčín, IČO: 47456817, DIČ: 2023882564 (neplatca DPH)
Zdravý dom s.r.o., Šoltésovej 1995, 911 01 Trenčín, IČO: 46848215, IČ DPH: SK2023607740 (platca DPH)